






項目名稱:常州快克錫焊股份上海辦公總部辦公室裝修設計效果圖
項目地址:閔行區正榮中心6號樓5樓
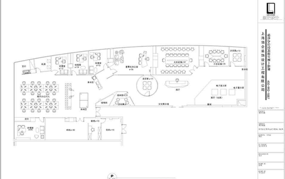
面積:860平
公司介紹:快克在錫焊行業的技術領先和品質優勢已得到國內外電子工程師的普遍認可,公司研發的系列“無鉛控溫電焊臺”、“無鉛智能熱風拆焊臺”等產品完全可以替代國外同類產品,多年來一直引領國內整個行業的技術主流發展方向,并榮獲國家多項專利。快克憑借著雄厚的研發實力在國內最早研發出各種“紅外加熱型、熱風加熱型BGA返修設備”,打破了以往進口設備一統天下的格局,奠定了快克在焊接、返修領域的領導地位。
設計介紹:主要展示公司前臺、走道設計、會議室、辦公區、休閑區、等各個區域實物圖,設計師們主要以黑白色為主,藍色點綴,流動式燈管設計為亮點塑造出符合電子技術行業現代風辦公室。
價格保證
清單式報價,價格透明
量身定制
一對一量身定制設計方案
環保承諾
所有材料均保證為環保材料
7*24小時維保服務
快速響應,全年無休